Photos Ambiance

 

Photos Modèle

 

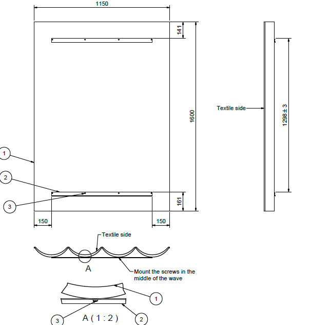
Fichiers Techniques Scala