Photos Ambiance table déplaçable sur roulettes
Photos ambiance Folding doublement rabattable
Photos modèle Folding doublement rabattable
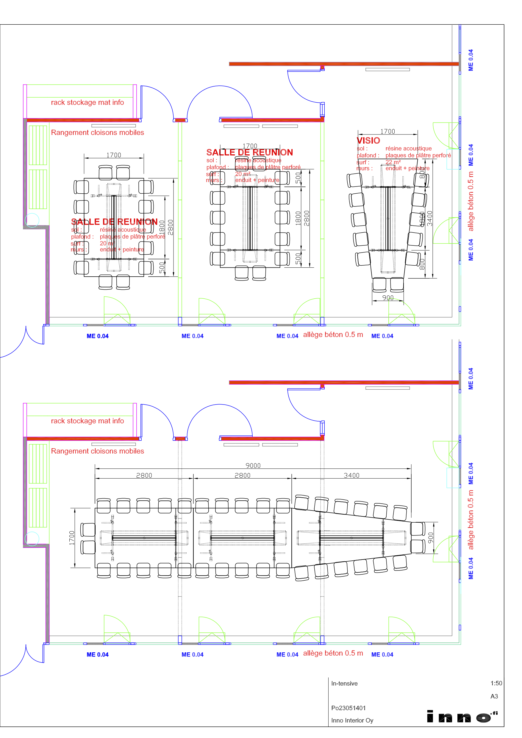
In-tensive Modulaire & Rabattable Fichiers Techniques
In-tensive Multi legs
In Lect Rabattable
Intensive Moove
